Herzlichen Dank für Ihre Anfrage.
Wir werden diese so schnell wie möglich bearbeiten.
Geschäftsführung
Beispielfoto
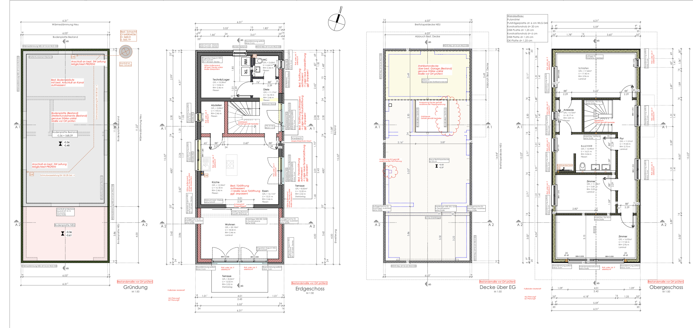
Grundrisse_Obing
NEUBAU Erstbezug!
Startup Einfamilienhaus. Gut geeignet für eine junge Familie mit und auch ohne Kinder und Haustiere.
-helle Räume
-grosses Bad
-große Fenster
-effizient errichtet
-tolles Raumklima
-top ausgestattet
Das Einfamilienhaus befindet sich im Zentrum Obing, einer charmanten Gemeinde im Freistaat Bayern. Obing zeichnet sich durch seine grüne Umgebung mit vielen Bäumen und Gärten aus. Die Nachbarschaft ist freundlich und familiär, ideal für Ruhe und Erholung.
Obing selbst ist eine idyllische Gemeinde, die für ihre malerische Landschaft bekannt ist. Alle Angebote des täglichen Bedarfs sind fussläufig erreichbar. Die Gemeinde verfügt auch über gute öffentliche Verkehrsanbindungen und ist sowohl für Pendler als auch für Familien gut geeignet.
Die Region um Obing ist vor allem für ihre Naturschönheit und zahlreichen Freizeitmöglichkeiten beliebt. In unmittelbarer Nähe befinden sich Seen und Wanderwege, die zu ausgiebigen Spaziergängen oder Fahrradtouren einladen. Die Nähe zu den Alpen ermöglicht zudem im Winter das Skifahren und Snowboarden. Insgesamt bietet die Region ein hohes Maß an Lebensqualität und eignet sich optimal für Naturliebhaber und Outdoor-Enthusiasten.
Tolle Ausstattung:
-LED Beleuchtungskonzept
-Fussbodenheizung
-Markeneinbauküche mit Kochinsel
-hochwertige Bodenbeläge
-elektrische Rollos
-effiziente Buderus Wärmepumpe
-dezentrale Wohnraumbelüftung
uvm.
Alle Angaben ohne Gewähr!
Wir werden diese so schnell wie möglich bearbeiten.